- Alle categorieën
- Aan- en afvoertafels
- Aanstekers en branders
- Afruimwagens
- Afvalbakken
- Afvoerartikelen
- Afzetaccessoires
- Afzetkoorden
- Afzetpalen
- Afzetpalen en koorden
- Afzuigkap met motor
- Afzuigkap toebehoren
- Afzuigkap zonder motor
- Amuse bestek
- Antisliptegels
- Babytafel
- Bain-marie buffet
- Bain-marie met onderstel
- Bain-marie Tafelmodellen
- Bain-marie transportwagens
- Bakkerijkoelingen
- Bakmatten
- Bakpapier
- Bakplaten en bakoosters
- Bakplaten en bakroosters
- Bakplaten en grillplaten
- Bakvormen
- Barbecue toebehoren
- Barbecues
- barista artikelen
- Barkoelkasten
- Barkrukken
- Barmatten en lekroosters
- Barmattten en lekroosters
- barstations
- Beenderzagen
- Beiersdispensers
- Bekerdispensers
- Beslagkommen
- Bestekbakken
- Blast Chillers
- Blenders en Mixers
- Blikopeners
- Blusdekens
- Bonnenhouders
- Borden
- Bordenrekken
- Bordenverwarmers
- Braadpannen
- Brandpasta
- Broeken
- Broodroosters
- Broodsnijmachines
- Buffet etagères
- Buffetmandjes
- Buffetvitrines
- Chafing dishes elektrisch
- Chafing dishes op brandpasta
- Champagne en Wijnkoelers
- Chocoladefonteinen
- Chocolademachines
- Chocolademelkdispensers
- Chocoladesausverwarmers
- Chocoladesmelters
- Cocktailshakers en schenkflessen
- Cocktailshakers en shakersets
- Combisteamers
- Contactgrills en Paninigrills
- Crêpes-bakplaten
- Crêpespannen
- Deegmengers
- Deegrollers
- Deegschrapers
- Deegsnijders
- Dessertborden
- Dienbladen
- Doorlooptoaster
- Doorschuifvaatwassers
- Drankendispenser
- Droogkast Vlees
- Droogovens
- EHBO-koffers
- Eierkokers
- Elektrische Fornuizen
- Elektrische friteuses
- Elektrische handdrogers
- Emmers
- Etagères
- Eten presentatiemandje en emmeertjes
- Eten presentatiemandjes en emmertjes
- Flesopeners
- Flesopeners en non-slip schenker
- Flessenhouders en non-drip schenkers
- flessenkoelers
- Flessenkoelkasten
- flessenopeners
- Folie verpakkingsmachines
- Fornuizen
- Friet uitschepbakken
- Friet warmhoudbakken
- Frietsnijders
- Friettrechters
- Frituur Accessoires
- Frituurmanden
- Frituurscheppen
- Frituurvet opvangemmers
- Gamellen
- Garderoberekken
- Gasfornuizen
- Gasfriteuses
- Gastronorm uitschepwagens
- Gastronormbakken van plastic
- Gebaksvitrines
- Gekoelde bain-marie eilanden
- Gereedschap voor pizza
- glazen
- Glazenrekken
- Glazenspoelmachines
- GN Bakken
- gn bakken accessoires
- GN Bakken RVS
- GN bakkenhouders
- GN Deksels
- GN-bakken accessoires
- GN-bakken melamine
- Grillpannen
- Grills en bakplaten
- Groentesnijders
- Haardrogers
- Hamburgerpersen
- Hangende wasbakken
- Hapjespannen
- Heetwaterdispenser
- Heteluchtovens
- Hokkers en branders
- Hoofddeksels
- Horeca koelkasten
- Horeca schoenen
- Horecabanken
- Horecakoelkasten
- horecaschorten
- Horecatafelbladen
- horecatafels
- Horecatafelvoeten
- Hotel accessoires
- Hotel badkameraccessoires
- Hotelkluizen
- Ijs Teppanyaki
- IJsbakken
- Ijsblokjesmachine
- Ijsblokjesmachines
- Ijsbunkers
- IJsemmers en ijstools
- ijsmachines
- IJsscheppen
- Ijsvergruizers
- Ijsvitrines
- Inductiefornuizen
- Inductiekookplaten
- Inklapbare Stoelen
- Inklapbare tafels
- Insectenverdelgers
- Kaarsen - Theelichthouders
- Kantelbare Braadpannen
- Karaffen
- Kassa’s
- Kebab- En Doner Apparatuur
- Keukengerei
- Kippengrills
- Kledingaccessoires
- Koekenpannen
- Koel & Vriescel Motoren
- Koelcellen
- Koelelement
- Koelelementen
- Koelplaten
- Koelvitrines
- Koelwerkbanken
- Koffiemachines
- Koksbuizen
- Koksmessen
- Kookketels
- Kookpannen en soeppannen
- Kookplaten
- Kopjes
- Kopjesverwarmers
- Krijtstiften
- LED displays
- Luchtverfrissers
- Maatbekers en barmaatjes
- Maatschenkers en barmaatjes
- Maatschenkers en marmaatjes
- Magnetrons
- Melk- en theeaccessoires
- Melk- en theekannetjes
- Melk-, thee- en sapkannen
- Melk-, thee- en suikerpotten
- Melkopschuimers
- Menagerie sets
- menuhouders
- Menukaarten
- Messenslijpers
- Meten en timen
- Minibars
- Mobiele wasbakken
- Neutrale Vitrines
- Neutrale Werkunit
- Oliefilters
- Onderdeel
- Onderstellen
- Ontbijtgranendispensers
- Opbergbakken
- Opbergrekken
- Opzetkoelvitrines
- Ovens
- Overhemden
- Overige RVS
- Paellapannen
- Pannen
- Pannen Benodigdheden
- Pannensets
- Pannenwassers
- papierdispenser
- Papierdispensers
- Parasols
- Pastakokers
- Pastamachines
- Peper- en zoutmolens
- Percolators
- Pizzadozen
- Pizzaovens
- Pizzascheppen
- Pizzatassen
- Pizzawerkbanken
- Planeetmenger
- Poffertjespannen
- Poleermachines
- Popcornmachines
- Presentatieschalen
- Quartz toasters
- Raamposterhouders
- Ramekins
- rameskins
- Raspem
- Raspen
- Receptiebellen
- Regaalwagens
- Rekeninghouders
- Rijskasten
- Rijstkokers
- Roeren en stampen
- Rookhout
- Rookovens
- RVS Accessoires
- RVS Kasten
- RVS servieskasten en opbergkasten
- RVS wandkasten
- RVS Wandschappen
- Saladebars
- Saladettes
- Salamanders
- sapcentrifuge
- Sapcentrifuges
- Sausdispenser en sausflessen
- Sausdispensers en sausflessen
- Sauskommen
- Sauspannen
- Sauspannetjes
- Schilferijsmachines
- Schilmachines
- Schoenen
- Schoenpoetsmachine
- Schoonmaakdoeken
- Schoonmaakproducten
- Schoonmaakwagens
- Schotels
- Serveerkommen
- Serveerkommen en schalen
- serveerschalen
- Serveertangen
- Serveerwagens
- Serveren en presenteren
- Servetten
- Servettenhouders
- Silhouet Krijtborden
- Slacentrifuges
- Slagroomspuiten en slagroompatronen
- Slowcookers
- Slush Puppy machines
- Snackbereiders
- Snackzakken en verpakkingsfolie
- Snijmachines
- Snijplanken
- Soepborden en soepkommen
- Soepketels
- Sous Vides
- Spare Parts
- spareparts
- Specerijenrekken
- Spoelborstels
- Spoeltafels
- Spuitzakken
- Staafmixers
- Staande asbakken
- Stafelbare stoelen
- Sterilisatiekasten
- Stickers
- Stoelen
- Stoepborden
- Stoofpannen
- Strijkijzers
- Strijkplanken
- Suikerspinmachines
- Sushi en tapasvitrines
- Tafelasbakken
- Tafeldecoratie
- Tafelgerei
- Tafelkleden
- Tafelkrijtborden
- Tafelpresentatie
- Tafelrokken en tafelhoezen
- Tafelvorken en tafelmessen
- Teppanyaki's Warm
- Terrasverwarmers
- Thee- en koffieaccessoires
- Thermoboxen
- Thermometers
- Thermoskannen
- Toiletaccessoires
- Toiletpapier
- Toonbankdecoratie
- Tortillapersen
- Tosti apparaten
- Transport accessoires
- Transportwagens
- Trapjes, Krukjes, Opstapjes
- Trechters
- Vaatwaaskorven
- Vaatwaskorfen
- Vaatwaskorven
- Vaatwasmiddelen
- Vaatwassers
- Vacumeermachines zonder kamer
- Vacuum verpakkingszakken
- Vacuummachines
- Vacuummachines Met Kamer
- Verbruiksartikelen
- Verlichting
- Verpakkingsfolies
- Verwarmde containers
- Vitrineplateaus
- Vleesbakken
- Vleesmolens
- Vleessnijmachines
- Voedselstickers
- Voedselverwarmers
- Voorspoeldouches en kranen
- Vriescellen
- Vrieskasten
- Vrieskisten
- Vriesvitrines
- Vrieswerkbanken
- Vuilnisbakken
- Vuilnisbakkenkoelers
- Vuilniszakken
- Wafelijzers
- Wandasbak
- Wandkoelmeubels
- Wandkrijtborden
- Warmhoudelementen voor thermoboxen
- warmhouditrines
- Warmhoudkast
- Warmhoudkasten
- Warmhoudvitrines
- Warmtebruggen
- Warmtelampen
- Warmteplaten
- Waterkokers
- Waterontharders
- Weckpotten en conserveerpotten
- Weegschalen
- Wegwerpbakjes & Snackbakjes
- Wegwerpbekers
- Wegwerpbestek & Tafelgerei
- Wegwerpboxen
- Wegwerpkleding
- Werkbanken
- Werkkasten
- Werkstations
- Werktafelbladen
- Werktafels
- Wijnaccessoires
- Wijnkoelers
- Wijnkoelkasten
- Wijnrekken
- Wokbranders
- Wokfornuizen
- Wokpannen
- Worstenvullers
- Worstenwarmers
- Zeep- en desinfectiedispensers
- Alle categorieën
- Aan- en afvoertafels
- Aanstekers en branders
- Afruimwagens
- Afvalbakken
- Afvoerartikelen
- Afzetaccessoires
- Afzetkoorden
- Afzetpalen
- Afzetpalen en koorden
- Afzuigkap met motor
- Afzuigkap toebehoren
- Afzuigkap zonder motor
- Amuse bestek
- Antisliptegels
- Babytafel
- Bain-marie buffet
- Bain-marie met onderstel
- Bain-marie Tafelmodellen
- Bain-marie transportwagens
- Bakkerijkoelingen
- Bakmatten
- Bakpapier
- Bakplaten en bakoosters
- Bakplaten en bakroosters
- Bakplaten en grillplaten
- Bakvormen
- Barbecue toebehoren
- Barbecues
- barista artikelen
- Barkoelkasten
- Barkrukken
- Barmatten en lekroosters
- Barmattten en lekroosters
- barstations
- Beenderzagen
- Beiersdispensers
- Bekerdispensers
- Beslagkommen
- Bestekbakken
- Blast Chillers
- Blenders en Mixers
- Blikopeners
- Blusdekens
- Bonnenhouders
- Borden
- Bordenrekken
- Bordenverwarmers
- Braadpannen
- Brandpasta
- Broeken
- Broodroosters
- Broodsnijmachines
- Buffet etagères
- Buffetmandjes
- Buffetvitrines
- Chafing dishes elektrisch
- Chafing dishes op brandpasta
- Champagne en Wijnkoelers
- Chocoladefonteinen
- Chocolademachines
- Chocolademelkdispensers
- Chocoladesausverwarmers
- Chocoladesmelters
- Cocktailshakers en schenkflessen
- Cocktailshakers en shakersets
- Combisteamers
- Contactgrills en Paninigrills
- Crêpes-bakplaten
- Crêpespannen
- Deegmengers
- Deegrollers
- Deegschrapers
- Deegsnijders
- Dessertborden
- Dienbladen
- Doorlooptoaster
- Doorschuifvaatwassers
- Drankendispenser
- Droogkast Vlees
- Droogovens
- EHBO-koffers
- Eierkokers
- Elektrische Fornuizen
- Elektrische friteuses
- Elektrische handdrogers
- Emmers
- Etagères
- Eten presentatiemandje en emmeertjes
- Eten presentatiemandjes en emmertjes
- Flesopeners
- Flesopeners en non-slip schenker
- Flessenhouders en non-drip schenkers
- flessenkoelers
- Flessenkoelkasten
- flessenopeners
- Folie verpakkingsmachines
- Fornuizen
- Friet uitschepbakken
- Friet warmhoudbakken
- Frietsnijders
- Friettrechters
- Frituur Accessoires
- Frituurmanden
- Frituurscheppen
- Frituurvet opvangemmers
- Gamellen
- Garderoberekken
- Gasfornuizen
- Gasfriteuses
- Gastronorm uitschepwagens
- Gastronormbakken van plastic
- Gebaksvitrines
- Gekoelde bain-marie eilanden
- Gereedschap voor pizza
- glazen
- Glazenrekken
- Glazenspoelmachines
- GN Bakken
- gn bakken accessoires
- GN Bakken RVS
- GN bakkenhouders
- GN Deksels
- GN-bakken accessoires
- GN-bakken melamine
- Grillpannen
- Grills en bakplaten
- Groentesnijders
- Haardrogers
- Hamburgerpersen
- Hangende wasbakken
- Hapjespannen
- Heetwaterdispenser
- Heteluchtovens
- Hokkers en branders
- Hoofddeksels
- Horeca koelkasten
- Horeca schoenen
- Horecabanken
- Horecakoelkasten
- horecaschorten
- Horecatafelbladen
- horecatafels
- Horecatafelvoeten
- Hotel accessoires
- Hotel badkameraccessoires
- Hotelkluizen
- Ijs Teppanyaki
- IJsbakken
- Ijsblokjesmachine
- Ijsblokjesmachines
- Ijsbunkers
- IJsemmers en ijstools
- ijsmachines
- IJsscheppen
- Ijsvergruizers
- Ijsvitrines
- Inductiefornuizen
- Inductiekookplaten
- Inklapbare Stoelen
- Inklapbare tafels
- Insectenverdelgers
- Kaarsen - Theelichthouders
- Kantelbare Braadpannen
- Karaffen
- Kassa’s
- Kebab- En Doner Apparatuur
- Keukengerei
- Kippengrills
- Kledingaccessoires
- Koekenpannen
- Koel & Vriescel Motoren
- Koelcellen
- Koelelement
- Koelelementen
- Koelplaten
- Koelvitrines
- Koelwerkbanken
- Koffiemachines
- Koksbuizen
- Koksmessen
- Kookketels
- Kookpannen en soeppannen
- Kookplaten
- Kopjes
- Kopjesverwarmers
- Krijtstiften
- LED displays
- Luchtverfrissers
- Maatbekers en barmaatjes
- Maatschenkers en barmaatjes
- Maatschenkers en marmaatjes
- Magnetrons
- Melk- en theeaccessoires
- Melk- en theekannetjes
- Melk-, thee- en sapkannen
- Melk-, thee- en suikerpotten
- Melkopschuimers
- Menagerie sets
- menuhouders
- Menukaarten
- Messenslijpers
- Meten en timen
- Minibars
- Mobiele wasbakken
- Neutrale Vitrines
- Neutrale Werkunit
- Oliefilters
- Onderdeel
- Onderstellen
- Ontbijtgranendispensers
- Opbergbakken
- Opbergrekken
- Opzetkoelvitrines
- Ovens
- Overhemden
- Overige RVS
- Paellapannen
- Pannen
- Pannen Benodigdheden
- Pannensets
- Pannenwassers
- papierdispenser
- Papierdispensers
- Parasols
- Pastakokers
- Pastamachines
- Peper- en zoutmolens
- Percolators
- Pizzadozen
- Pizzaovens
- Pizzascheppen
- Pizzatassen
- Pizzawerkbanken
- Planeetmenger
- Poffertjespannen
- Poleermachines
- Popcornmachines
- Presentatieschalen
- Quartz toasters
- Raamposterhouders
- Ramekins
- rameskins
- Raspem
- Raspen
- Receptiebellen
- Regaalwagens
- Rekeninghouders
- Rijskasten
- Rijstkokers
- Roeren en stampen
- Rookhout
- Rookovens
- RVS Accessoires
- RVS Kasten
- RVS servieskasten en opbergkasten
- RVS wandkasten
- RVS Wandschappen
- Saladebars
- Saladettes
- Salamanders
- sapcentrifuge
- Sapcentrifuges
- Sausdispenser en sausflessen
- Sausdispensers en sausflessen
- Sauskommen
- Sauspannen
- Sauspannetjes
- Schilferijsmachines
- Schilmachines
- Schoenen
- Schoenpoetsmachine
- Schoonmaakdoeken
- Schoonmaakproducten
- Schoonmaakwagens
- Schotels
- Serveerkommen
- Serveerkommen en schalen
- serveerschalen
- Serveertangen
- Serveerwagens
- Serveren en presenteren
- Servetten
- Servettenhouders
- Silhouet Krijtborden
- Slacentrifuges
- Slagroomspuiten en slagroompatronen
- Slowcookers
- Slush Puppy machines
- Snackbereiders
- Snackzakken en verpakkingsfolie
- Snijmachines
- Snijplanken
- Soepborden en soepkommen
- Soepketels
- Sous Vides
- Spare Parts
- spareparts
- Specerijenrekken
- Spoelborstels
- Spoeltafels
- Spuitzakken
- Staafmixers
- Staande asbakken
- Stafelbare stoelen
- Sterilisatiekasten
- Stickers
- Stoelen
- Stoepborden
- Stoofpannen
- Strijkijzers
- Strijkplanken
- Suikerspinmachines
- Sushi en tapasvitrines
- Tafelasbakken
- Tafeldecoratie
- Tafelgerei
- Tafelkleden
- Tafelkrijtborden
- Tafelpresentatie
- Tafelrokken en tafelhoezen
- Tafelvorken en tafelmessen
- Teppanyaki's Warm
- Terrasverwarmers
- Thee- en koffieaccessoires
- Thermoboxen
- Thermometers
- Thermoskannen
- Toiletaccessoires
- Toiletpapier
- Toonbankdecoratie
- Tortillapersen
- Tosti apparaten
- Transport accessoires
- Transportwagens
- Trapjes, Krukjes, Opstapjes
- Trechters
- Vaatwaaskorven
- Vaatwaskorfen
- Vaatwaskorven
- Vaatwasmiddelen
- Vaatwassers
- Vacumeermachines zonder kamer
- Vacuum verpakkingszakken
- Vacuummachines
- Vacuummachines Met Kamer
- Verbruiksartikelen
- Verlichting
- Verpakkingsfolies
- Verwarmde containers
- Vitrineplateaus
- Vleesbakken
- Vleesmolens
- Vleessnijmachines
- Voedselstickers
- Voedselverwarmers
- Voorspoeldouches en kranen
- Vriescellen
- Vrieskasten
- Vrieskisten
- Vriesvitrines
- Vrieswerkbanken
- Vuilnisbakken
- Vuilnisbakkenkoelers
- Vuilniszakken
- Wafelijzers
- Wandasbak
- Wandkoelmeubels
- Wandkrijtborden
- Warmhoudelementen voor thermoboxen
- warmhouditrines
- Warmhoudkast
- Warmhoudkasten
- Warmhoudvitrines
- Warmtebruggen
- Warmtelampen
- Warmteplaten
- Waterkokers
- Waterontharders
- Weckpotten en conserveerpotten
- Weegschalen
- Wegwerpbakjes & Snackbakjes
- Wegwerpbekers
- Wegwerpbestek & Tafelgerei
- Wegwerpboxen
- Wegwerpkleding
- Werkbanken
- Werkkasten
- Werkstations
- Werktafelbladen
- Werktafels
- Wijnaccessoires
- Wijnkoelers
- Wijnkoelkasten
- Wijnrekken
- Wokbranders
- Wokfornuizen
- Wokpannen
- Worstenvullers
- Worstenwarmers
- Zeep- en desinfectiedispensers
Hoofdmenu
-
Koelen & Vriezen
- Koelen & Vriezen
-
Koelkasten
-
Vriezers
-
Ijsmachines
-
Koelcellen en vriescellen
-
Werkbanken
-
Vitrines
-
Buffetkoelers
-
Keukenapparatuur
- Keukenapparatuur
-
Ovens
-
Fornuizen en kookplaten
-
Grills en bakplaten
-
Friteuses
-
Toasters
-
Snijmachines
-
Vleesverwerking
-
Mixers en deegmachines
-
Kokers
-
Voedselwassers
-
Zoete snackmachines
-
Overige keukenapparatuur
-
Keukenaccessoires
- Keukenaccessoires
-
Keukengereedschap
-
Frituur accessoires
-
Pannen
-
Vacumeren en Verpakken
-
Bakken en patisserie
-
To-Go verpakkingen
-
Gastronorm en andere bakken
-
Overige Keukenaccessoires
-
Warmhouden
- Warmhouden
-
Chafing dishes
-
Bain-Marie
-
Warmhoudvitrines
-
Voedselverwarmers
-
Serviesverwarmers
-
Warme dranken
-
Chocolade
-
Transport en bezorging
-
RVS
- RVS
-
RVS Tafels
-
RVS Spoeltafels
-
RVS Serveerwagens & Transportwagens
-
Afzuigkappen
-
RVS Toebehoren
-
Overige RVS
-
Aankleding
- Aankleding
-
Horecameubilair
-
Tafelen
-
Serveren & Presenteren
- Serveren & Presenteren
- Dienbladen
- Serveerkommen en schalen
- Vleesbakken
- Rekeninghouders
- Hotel presentatie artikelen
- Receptiebellen
- Toonbankdecoratie
- Thee- en koffieaccessoires
- Melk- en theekannetjes
- Vitrineplateaus
- Leisteenplateaus
- Amuse bestek
- Eten presentatiemandjes en emmertjes
- Champagne en wijnkoelers
-
Buffetartikelen
-
Decoratie
-
Horecakleding
-
Barartikelen
- Barartikelen
- Barlepels en stampers
- Barmatten en lekroosters
- Cocktailshakers en schenkflessen
- IJsvergruizers
- Wijnrekken
- Flessenkoelers
- Flesopeners
- Flessenhouders en non-drip schenkers
- Glazen
- IJsemmers en ijstools
- Spoelborstels
- Wijnaccessoires
- Servettenhouders
- Barista artikelen
- Glazenrekken
- Maatschenkers en barmaatjes
- Barstations
-
Menu's
-
Afzetpalen & Koorden
-
Krijtborden & Krijtstiften
-
Informatieborden
-
Kassa's, Portefeuilles & Kluizen
-
Vaatwassen & Hygiëne
- Vaatwassen & Hygiëne
-
Vaatwassen
-
Strijken
-
Wasbakken
-
Sanitair
-
Afvalbakken
-
Schoonmaken
-
Asbakken
-
Veiligheid
-
Wassen & Drogen
-
Overige categorieën
Uw winkelwagen
Combisteel
KOEL-/VRIESEILAND OMSCHAKELBAAR 1.5
This product will be available for sale in 2 weeks, but you can pre-order now to receive 10% discount!
Ontdek de veelzijdigheid van de KOEL-/VRIESEILAND OMSCHAKELBAAR 1.5, een innovatieve oplossing voor elke commerciële keuken. Dit Combisteel product biedt ongeëvenaarde functionaliteit door eenvoudig te schakelen tussen koel- en vriesmodus, waardoor het perfect is voor het bewaren van een breed scala aan voedingsmiddelen. Of je nu een restaurant runt of een cateringbedrijf hebt, deze koel-vriescombinatie is een must-have in jouw assortiment.
- Afmetingen: 1.5 meter lengte - ideaal voor beperkte ruimtes zonder in te boeten op capaciteit.
- Materiaal: Robuuste RVS constructie zorgt voor een lange levensduur en eenvoudige reiniging.
- Capaciteit: Voldoende ruimte voor al jouw producten, van verswaren tot diepvriesproducten.
- Temperatuurregeling: Geavanceerde digitale thermostaat voor nauwkeurige temperatuurbeheersing.
- Energiezuinig: Ontworpen om energie te besparen zonder in te boeten op prestaties.
Wat deze koel-/vriescombinatie echt laat opvallen is zijn aanpasbaarheid. Met één druk op de knop kun je overschakelen van koelen naar vriezen, waardoor je moeiteloos kunt inspelen op jouw voorraadbehoeften. Dit maakt de KOEL-/VRIESEILAND OMSCHAKELBAAR 1.5 de ideale keuze voor dynamische keukens die variëren in hun voorraadaanvragen.
Verhoog de efficiëntie van jouw keuken met deze multifunctionele oplossing. Maak vandaag nog de overstap naar de KOEL-/VRIESEILAND OMSCHAKELBAAR 1.5 en ervaar het gemak van een flexibele en betrouwbare koeloplossing!
KOEL-/VRIESEILAND OMSCHAKELBAAR 1.5
This product will be available for sale in 2 weeks, but you can pre-order now to receive 10% discount!
Verwachte levering tussen 06 februari en 08 februari.
Gratis verzending: vanaf €250
24 maanden garantie
Onze experts staan voor je klaar
Lease of advies nodig?
Heb je vragen over lease, een complete keuken of een specifiek apparaat? Neem eenvoudig contact op.
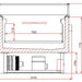
Breedte in mm
1530 mm
Diepte in mm
995 mm
Hoogte in mm
950 mm
Beschrijving
Ontdek de veelzijdigheid van de KOEL-/VRIESEILAND OMSCHAKELBAAR 1.5, een innovatieve oplossing voor elke commerciële keuken. Dit Combisteel product biedt ongeëvenaarde functionaliteit door eenvoudig te schakelen tussen koel- en vriesmodus, waardoor het perfect is voor het bewaren van een breed scala aan voedingsmiddelen. Of je nu een restaurant runt of een cateringbedrijf hebt, deze koel-vriescombinatie is een must-have in jouw assortiment.
- Afmetingen: 1.5 meter lengte - ideaal voor beperkte ruimtes zonder in te boeten op capaciteit.
- Materiaal: Robuuste RVS constructie zorgt voor een lange levensduur en eenvoudige reiniging.
- Capaciteit: Voldoende ruimte voor al jouw producten, van verswaren tot diepvriesproducten.
- Temperatuurregeling: Geavanceerde digitale thermostaat voor nauwkeurige temperatuurbeheersing.
- Energiezuinig: Ontworpen om energie te besparen zonder in te boeten op prestaties.
Wat deze koel-/vriescombinatie echt laat opvallen is zijn aanpasbaarheid. Met één druk op de knop kun je overschakelen van koelen naar vriezen, waardoor je moeiteloos kunt inspelen op jouw voorraadbehoeften. Dit maakt de KOEL-/VRIESEILAND OMSCHAKELBAAR 1.5 de ideale keuze voor dynamische keukens die variëren in hun voorraadaanvragen.
Verhoog de efficiëntie van jouw keuken met deze multifunctionele oplossing. Maak vandaag nog de overstap naar de KOEL-/VRIESEILAND OMSCHAKELBAAR 1.5 en ervaar het gemak van een flexibele en betrouwbare koeloplossing!
U heeft onlangs bekeken
- Een selectie maken veroorzaakt een volledige pagina-vernieuwing.
- Opent in een nieuw venster.