- Alle categorieën
- Aan- en afvoertafels
- Aanstekers en branders
- Afruimwagens
- Afvalbakken
- Afvoerartikelen
- Afzetaccessoires
- Afzetkoorden
- Afzetpalen
- Afzetpalen en koorden
- Afzuigkap met motor
- Afzuigkap toebehoren
- Afzuigkap zonder motor
- Amuse bestek
- Antisliptegels
- Babytafel
- Bain-marie buffet
- Bain-marie met onderstel
- Bain-marie Tafelmodellen
- Bain-marie transportwagens
- Bakkerijkoelingen
- Bakmatten
- Bakpapier
- Bakplaten en bakoosters
- Bakplaten en bakroosters
- Bakplaten en grillplaten
- Bakvormen
- Barbecue toebehoren
- Barbecues
- barista artikelen
- Barkoelkasten
- Barkrukken
- Barmatten en lekroosters
- Barmattten en lekroosters
- barstations
- Beenderzagen
- Beiersdispensers
- Bekerdispensers
- Beslagkommen
- Bestekbakken
- Blast Chillers
- Blenders en Mixers
- Blikopeners
- Blusdekens
- Bonnenhouders
- Borden
- Bordenrekken
- Bordenverwarmers
- Braadpannen
- Brandpasta
- Broeken
- Broodroosters
- Broodsnijmachines
- Buffet etagères
- Buffetmandjes
- Buffetvitrines
- Chafing dishes elektrisch
- Chafing dishes op brandpasta
- Champagne en Wijnkoelers
- Chocoladefonteinen
- Chocolademachines
- Chocolademelkdispensers
- Chocoladesausverwarmers
- Chocoladesmelters
- Cocktailshakers en schenkflessen
- Cocktailshakers en shakersets
- Combisteamers
- Contactgrills en Paninigrills
- Crêpes-bakplaten
- Crêpespannen
- Deegmengers
- Deegrollers
- Deegschrapers
- Deegsnijders
- Dessertborden
- Dienbladen
- Doorlooptoaster
- Doorschuifvaatwassers
- Drankendispenser
- Droogkast Vlees
- Droogovens
- EHBO-koffers
- Eierkokers
- Elektrische Fornuizen
- Elektrische friteuses
- Elektrische handdrogers
- Emmers
- Etagères
- Eten presentatiemandje en emmeertjes
- Eten presentatiemandjes en emmertjes
- Flesopeners
- Flesopeners en non-slip schenker
- Flessenhouders en non-drip schenkers
- flessenkoelers
- Flessenkoelkasten
- flessenopeners
- Folie verpakkingsmachines
- Fornuizen
- Friet uitschepbakken
- Friet warmhoudbakken
- Frietsnijders
- Friettrechters
- Frituur Accessoires
- Frituurmanden
- Frituurscheppen
- Frituurvet opvangemmers
- Gamellen
- Garderoberekken
- Gasfornuizen
- Gasfriteuses
- Gastronorm uitschepwagens
- Gastronormbakken van plastic
- Gebaksvitrines
- Gekoelde bain-marie eilanden
- Gereedschap voor pizza
- glazen
- Glazenrekken
- Glazenspoelmachines
- GN Bakken
- gn bakken accessoires
- GN Bakken RVS
- GN bakkenhouders
- GN Deksels
- GN-bakken accessoires
- GN-bakken melamine
- Grillpannen
- Grills en bakplaten
- Groentesnijders
- Haardrogers
- Hamburgerpersen
- Hangende wasbakken
- Hapjespannen
- Heetwaterdispenser
- Heteluchtovens
- Hokkers en branders
- Hoofddeksels
- Horeca koelkasten
- Horeca schoenen
- Horecabanken
- Horecakoelkasten
- horecaschorten
- Horecatafelbladen
- horecatafels
- Horecatafelvoeten
- Hotel accessoires
- Hotel badkameraccessoires
- Hotelkluizen
- Ijs Teppanyaki
- IJsbakken
- Ijsblokjesmachine
- Ijsblokjesmachines
- Ijsbunkers
- IJsemmers en ijstools
- ijsmachines
- IJsscheppen
- Ijsvergruizers
- Ijsvitrines
- Inductiefornuizen
- Inductiekookplaten
- Inklapbare Stoelen
- Inklapbare tafels
- Insectenverdelgers
- Kaarsen - Theelichthouders
- Kantelbare Braadpannen
- Karaffen
- Kassa’s
- Kebab- En Doner Apparatuur
- Keukengerei
- Kippengrills
- Kledingaccessoires
- Koekenpannen
- Koel & Vriescel Motoren
- Koelcellen
- Koelelement
- Koelelementen
- Koelplaten
- Koelvitrines
- Koelwerkbanken
- Koffiemachines
- Koksbuizen
- Koksmessen
- Kookketels
- Kookpannen en soeppannen
- Kookplaten
- Kopjes
- Kopjesverwarmers
- Krijtstiften
- LED displays
- Luchtverfrissers
- Maatbekers en barmaatjes
- Maatschenkers en barmaatjes
- Maatschenkers en marmaatjes
- Magnetrons
- Melk- en theeaccessoires
- Melk- en theekannetjes
- Melk-, thee- en sapkannen
- Melk-, thee- en suikerpotten
- Melkopschuimers
- Menagerie sets
- menuhouders
- Menukaarten
- Messenslijpers
- Meten en timen
- Minibars
- Mobiele wasbakken
- Neutrale Vitrines
- Neutrale Werkunit
- Oliefilters
- Onderdeel
- Onderstellen
- Ontbijtgranendispensers
- Opbergbakken
- Opbergrekken
- Opzetkoelvitrines
- Ovens
- Overhemden
- Overige RVS
- Paellapannen
- Pannen
- Pannen Benodigdheden
- Pannensets
- Pannenwassers
- papierdispenser
- Papierdispensers
- Parasols
- Pastakokers
- Pastamachines
- Peper- en zoutmolens
- Percolators
- Pizzadozen
- Pizzaovens
- Pizzascheppen
- Pizzatassen
- Pizzawerkbanken
- Planeetmenger
- Poffertjespannen
- Poleermachines
- Popcornmachines
- Presentatieschalen
- Quartz toasters
- Raamposterhouders
- Ramekins
- rameskins
- Raspem
- Raspen
- Receptiebellen
- Regaalwagens
- Rekeninghouders
- Rijskasten
- Rijstkokers
- Roeren en stampen
- Rookhout
- Rookovens
- RVS Accessoires
- RVS Kasten
- RVS servieskasten en opbergkasten
- RVS wandkasten
- RVS Wandschappen
- Saladebars
- Saladettes
- Salamanders
- sapcentrifuge
- Sapcentrifuges
- Sausdispenser en sausflessen
- Sausdispensers en sausflessen
- Sauskommen
- Sauspannen
- Sauspannetjes
- Schilferijsmachines
- Schilmachines
- Schoenen
- Schoenpoetsmachine
- Schoonmaakdoeken
- Schoonmaakproducten
- Schoonmaakwagens
- Schotels
- Serveerkommen
- Serveerkommen en schalen
- serveerschalen
- Serveertangen
- Serveerwagens
- Serveren en presenteren
- Servetten
- Servettenhouders
- Silhouet Krijtborden
- Slacentrifuges
- Slagroomspuiten en slagroompatronen
- Slowcookers
- Slush Puppy machines
- Snackbereiders
- Snackzakken en verpakkingsfolie
- Snijmachines
- Snijplanken
- Soepborden en soepkommen
- Soepketels
- Sous Vides
- Spare Parts
- spareparts
- Specerijenrekken
- Spoelborstels
- Spoeltafels
- Spuitzakken
- Staafmixers
- Staande asbakken
- Stafelbare stoelen
- Sterilisatiekasten
- Stickers
- Stoelen
- Stoepborden
- Stoofpannen
- Strijkijzers
- Strijkplanken
- Suikerspinmachines
- Sushi en tapasvitrines
- Tafelasbakken
- Tafeldecoratie
- Tafelgerei
- Tafelkleden
- Tafelkrijtborden
- Tafelpresentatie
- Tafelrokken en tafelhoezen
- Tafelvorken en tafelmessen
- Teppanyaki's Warm
- Terrasverwarmers
- Thee- en koffieaccessoires
- Thermoboxen
- Thermometers
- Thermoskannen
- Toiletaccessoires
- Toiletpapier
- Toonbankdecoratie
- Tortillapersen
- Tosti apparaten
- Transport accessoires
- Transportwagens
- Trapjes, Krukjes, Opstapjes
- Trechters
- Vaatwaaskorven
- Vaatwaskorfen
- Vaatwaskorven
- Vaatwasmiddelen
- Vaatwassers
- Vacumeermachines zonder kamer
- Vacuum verpakkingszakken
- Vacuummachines
- Vacuummachines Met Kamer
- Verbruiksartikelen
- Verlichting
- Verpakkingsfolies
- Verwarmde containers
- Vitrineplateaus
- Vleesbakken
- Vleesmolens
- Vleessnijmachines
- Voedselstickers
- Voedselverwarmers
- Voorspoeldouches en kranen
- Vriescellen
- Vrieskasten
- Vrieskisten
- Vriesvitrines
- Vrieswerkbanken
- Vuilnisbakken
- Vuilnisbakkenkoelers
- Vuilniszakken
- Wafelijzers
- Wandasbak
- Wandkoelmeubels
- Wandkrijtborden
- Warmhoudelementen voor thermoboxen
- warmhouditrines
- Warmhoudkast
- Warmhoudkasten
- Warmhoudvitrines
- Warmtebruggen
- Warmtelampen
- Warmteplaten
- Waterkokers
- Waterontharders
- Weckpotten en conserveerpotten
- Weegschalen
- Wegwerpbakjes & Snackbakjes
- Wegwerpbekers
- Wegwerpbestek & Tafelgerei
- Wegwerpboxen
- Wegwerpkleding
- Werkbanken
- Werkkasten
- Werkstations
- Werktafelbladen
- Werktafels
- Wijnaccessoires
- Wijnkoelers
- Wijnkoelkasten
- Wijnrekken
- Wokbranders
- Wokfornuizen
- Wokpannen
- Worstenvullers
- Worstenwarmers
- Zeep- en desinfectiedispensers
- Alle categorieën
- Aan- en afvoertafels
- Aanstekers en branders
- Afruimwagens
- Afvalbakken
- Afvoerartikelen
- Afzetaccessoires
- Afzetkoorden
- Afzetpalen
- Afzetpalen en koorden
- Afzuigkap met motor
- Afzuigkap toebehoren
- Afzuigkap zonder motor
- Amuse bestek
- Antisliptegels
- Babytafel
- Bain-marie buffet
- Bain-marie met onderstel
- Bain-marie Tafelmodellen
- Bain-marie transportwagens
- Bakkerijkoelingen
- Bakmatten
- Bakpapier
- Bakplaten en bakoosters
- Bakplaten en bakroosters
- Bakplaten en grillplaten
- Bakvormen
- Barbecue toebehoren
- Barbecues
- barista artikelen
- Barkoelkasten
- Barkrukken
- Barmatten en lekroosters
- Barmattten en lekroosters
- barstations
- Beenderzagen
- Beiersdispensers
- Bekerdispensers
- Beslagkommen
- Bestekbakken
- Blast Chillers
- Blenders en Mixers
- Blikopeners
- Blusdekens
- Bonnenhouders
- Borden
- Bordenrekken
- Bordenverwarmers
- Braadpannen
- Brandpasta
- Broeken
- Broodroosters
- Broodsnijmachines
- Buffet etagères
- Buffetmandjes
- Buffetvitrines
- Chafing dishes elektrisch
- Chafing dishes op brandpasta
- Champagne en Wijnkoelers
- Chocoladefonteinen
- Chocolademachines
- Chocolademelkdispensers
- Chocoladesausverwarmers
- Chocoladesmelters
- Cocktailshakers en schenkflessen
- Cocktailshakers en shakersets
- Combisteamers
- Contactgrills en Paninigrills
- Crêpes-bakplaten
- Crêpespannen
- Deegmengers
- Deegrollers
- Deegschrapers
- Deegsnijders
- Dessertborden
- Dienbladen
- Doorlooptoaster
- Doorschuifvaatwassers
- Drankendispenser
- Droogkast Vlees
- Droogovens
- EHBO-koffers
- Eierkokers
- Elektrische Fornuizen
- Elektrische friteuses
- Elektrische handdrogers
- Emmers
- Etagères
- Eten presentatiemandje en emmeertjes
- Eten presentatiemandjes en emmertjes
- Flesopeners
- Flesopeners en non-slip schenker
- Flessenhouders en non-drip schenkers
- flessenkoelers
- Flessenkoelkasten
- flessenopeners
- Folie verpakkingsmachines
- Fornuizen
- Friet uitschepbakken
- Friet warmhoudbakken
- Frietsnijders
- Friettrechters
- Frituur Accessoires
- Frituurmanden
- Frituurscheppen
- Frituurvet opvangemmers
- Gamellen
- Garderoberekken
- Gasfornuizen
- Gasfriteuses
- Gastronorm uitschepwagens
- Gastronormbakken van plastic
- Gebaksvitrines
- Gekoelde bain-marie eilanden
- Gereedschap voor pizza
- glazen
- Glazenrekken
- Glazenspoelmachines
- GN Bakken
- gn bakken accessoires
- GN Bakken RVS
- GN bakkenhouders
- GN Deksels
- GN-bakken accessoires
- GN-bakken melamine
- Grillpannen
- Grills en bakplaten
- Groentesnijders
- Haardrogers
- Hamburgerpersen
- Hangende wasbakken
- Hapjespannen
- Heetwaterdispenser
- Heteluchtovens
- Hokkers en branders
- Hoofddeksels
- Horeca koelkasten
- Horeca schoenen
- Horecabanken
- Horecakoelkasten
- horecaschorten
- Horecatafelbladen
- horecatafels
- Horecatafelvoeten
- Hotel accessoires
- Hotel badkameraccessoires
- Hotelkluizen
- Ijs Teppanyaki
- IJsbakken
- Ijsblokjesmachine
- Ijsblokjesmachines
- Ijsbunkers
- IJsemmers en ijstools
- ijsmachines
- IJsscheppen
- Ijsvergruizers
- Ijsvitrines
- Inductiefornuizen
- Inductiekookplaten
- Inklapbare Stoelen
- Inklapbare tafels
- Insectenverdelgers
- Kaarsen - Theelichthouders
- Kantelbare Braadpannen
- Karaffen
- Kassa’s
- Kebab- En Doner Apparatuur
- Keukengerei
- Kippengrills
- Kledingaccessoires
- Koekenpannen
- Koel & Vriescel Motoren
- Koelcellen
- Koelelement
- Koelelementen
- Koelplaten
- Koelvitrines
- Koelwerkbanken
- Koffiemachines
- Koksbuizen
- Koksmessen
- Kookketels
- Kookpannen en soeppannen
- Kookplaten
- Kopjes
- Kopjesverwarmers
- Krijtstiften
- LED displays
- Luchtverfrissers
- Maatbekers en barmaatjes
- Maatschenkers en barmaatjes
- Maatschenkers en marmaatjes
- Magnetrons
- Melk- en theeaccessoires
- Melk- en theekannetjes
- Melk-, thee- en sapkannen
- Melk-, thee- en suikerpotten
- Melkopschuimers
- Menagerie sets
- menuhouders
- Menukaarten
- Messenslijpers
- Meten en timen
- Minibars
- Mobiele wasbakken
- Neutrale Vitrines
- Neutrale Werkunit
- Oliefilters
- Onderdeel
- Onderstellen
- Ontbijtgranendispensers
- Opbergbakken
- Opbergrekken
- Opzetkoelvitrines
- Ovens
- Overhemden
- Overige RVS
- Paellapannen
- Pannen
- Pannen Benodigdheden
- Pannensets
- Pannenwassers
- papierdispenser
- Papierdispensers
- Parasols
- Pastakokers
- Pastamachines
- Peper- en zoutmolens
- Percolators
- Pizzadozen
- Pizzaovens
- Pizzascheppen
- Pizzatassen
- Pizzawerkbanken
- Planeetmenger
- Poffertjespannen
- Poleermachines
- Popcornmachines
- Presentatieschalen
- Quartz toasters
- Raamposterhouders
- Ramekins
- rameskins
- Raspem
- Raspen
- Receptiebellen
- Regaalwagens
- Rekeninghouders
- Rijskasten
- Rijstkokers
- Roeren en stampen
- Rookhout
- Rookovens
- RVS Accessoires
- RVS Kasten
- RVS servieskasten en opbergkasten
- RVS wandkasten
- RVS Wandschappen
- Saladebars
- Saladettes
- Salamanders
- sapcentrifuge
- Sapcentrifuges
- Sausdispenser en sausflessen
- Sausdispensers en sausflessen
- Sauskommen
- Sauspannen
- Sauspannetjes
- Schilferijsmachines
- Schilmachines
- Schoenen
- Schoenpoetsmachine
- Schoonmaakdoeken
- Schoonmaakproducten
- Schoonmaakwagens
- Schotels
- Serveerkommen
- Serveerkommen en schalen
- serveerschalen
- Serveertangen
- Serveerwagens
- Serveren en presenteren
- Servetten
- Servettenhouders
- Silhouet Krijtborden
- Slacentrifuges
- Slagroomspuiten en slagroompatronen
- Slowcookers
- Slush Puppy machines
- Snackbereiders
- Snackzakken en verpakkingsfolie
- Snijmachines
- Snijplanken
- Soepborden en soepkommen
- Soepketels
- Sous Vides
- Spare Parts
- spareparts
- Specerijenrekken
- Spoelborstels
- Spoeltafels
- Spuitzakken
- Staafmixers
- Staande asbakken
- Stafelbare stoelen
- Sterilisatiekasten
- Stickers
- Stoelen
- Stoepborden
- Stoofpannen
- Strijkijzers
- Strijkplanken
- Suikerspinmachines
- Sushi en tapasvitrines
- Tafelasbakken
- Tafeldecoratie
- Tafelgerei
- Tafelkleden
- Tafelkrijtborden
- Tafelpresentatie
- Tafelrokken en tafelhoezen
- Tafelvorken en tafelmessen
- Teppanyaki's Warm
- Terrasverwarmers
- Thee- en koffieaccessoires
- Thermoboxen
- Thermometers
- Thermoskannen
- Toiletaccessoires
- Toiletpapier
- Toonbankdecoratie
- Tortillapersen
- Tosti apparaten
- Transport accessoires
- Transportwagens
- Trapjes, Krukjes, Opstapjes
- Trechters
- Vaatwaaskorven
- Vaatwaskorfen
- Vaatwaskorven
- Vaatwasmiddelen
- Vaatwassers
- Vacumeermachines zonder kamer
- Vacuum verpakkingszakken
- Vacuummachines
- Vacuummachines Met Kamer
- Verbruiksartikelen
- Verlichting
- Verpakkingsfolies
- Verwarmde containers
- Vitrineplateaus
- Vleesbakken
- Vleesmolens
- Vleessnijmachines
- Voedselstickers
- Voedselverwarmers
- Voorspoeldouches en kranen
- Vriescellen
- Vrieskasten
- Vrieskisten
- Vriesvitrines
- Vrieswerkbanken
- Vuilnisbakken
- Vuilnisbakkenkoelers
- Vuilniszakken
- Wafelijzers
- Wandasbak
- Wandkoelmeubels
- Wandkrijtborden
- Warmhoudelementen voor thermoboxen
- warmhouditrines
- Warmhoudkast
- Warmhoudkasten
- Warmhoudvitrines
- Warmtebruggen
- Warmtelampen
- Warmteplaten
- Waterkokers
- Waterontharders
- Weckpotten en conserveerpotten
- Weegschalen
- Wegwerpbakjes & Snackbakjes
- Wegwerpbekers
- Wegwerpbestek & Tafelgerei
- Wegwerpboxen
- Wegwerpkleding
- Werkbanken
- Werkkasten
- Werkstations
- Werktafelbladen
- Werktafels
- Wijnaccessoires
- Wijnkoelers
- Wijnkoelkasten
- Wijnrekken
- Wokbranders
- Wokfornuizen
- Wokpannen
- Worstenvullers
- Worstenwarmers
- Zeep- en desinfectiedispensers
Hoofdmenu
-
Koelen & Vriezen
- Koelen & Vriezen
-
Koelkasten
-
Vriezers
-
Ijsmachines
-
Koelcellen en vriescellen
-
Werkbanken
-
Vitrines
-
Buffetkoelers
-
Keukenapparatuur
- Keukenapparatuur
-
Ovens
-
Fornuizen en kookplaten
-
Grills en bakplaten
-
Friteuses
-
Toasters
-
Snijmachines
-
Vleesverwerking
-
Mixers en deegmachines
-
Kokers
-
Voedselwassers
-
Zoete snackmachines
-
Overige keukenapparatuur
-
Keukenaccessoires
- Keukenaccessoires
-
Keukengereedschap
-
Frituur accessoires
-
Pannen
-
Vacumeren en Verpakken
-
Bakken en patisserie
-
To-Go verpakkingen
-
Gastronorm en andere bakken
-
Overige Keukenaccessoires
-
Warmhouden
- Warmhouden
-
Chafing dishes
-
Bain-Marie
-
Warmhoudvitrines
-
Voedselverwarmers
-
Serviesverwarmers
-
Warme dranken
-
Chocolade
-
Transport en bezorging
-
RVS
- RVS
-
RVS Tafels
-
RVS Spoeltafels
-
RVS Serveerwagens & Transportwagens
-
Afzuigkappen
-
RVS Toebehoren
-
Overige RVS
-
Aankleding
- Aankleding
-
Horecameubilair
-
Tafelen
-
Serveren & Presenteren
- Serveren & Presenteren
- Dienbladen
- Serveerkommen en schalen
- Vleesbakken
- Rekeninghouders
- Hotel presentatie artikelen
- Receptiebellen
- Toonbankdecoratie
- Thee- en koffieaccessoires
- Melk- en theekannetjes
- Vitrineplateaus
- Leisteenplateaus
- Amuse bestek
- Eten presentatiemandjes en emmertjes
- Champagne en wijnkoelers
-
Buffetartikelen
-
Decoratie
-
Horecakleding
-
Barartikelen
- Barartikelen
- Barlepels en stampers
- Barmatten en lekroosters
- Cocktailshakers en schenkflessen
- IJsvergruizers
- Wijnrekken
- Flessenkoelers
- Flesopeners
- Flessenhouders en non-drip schenkers
- Glazen
- IJsemmers en ijstools
- Spoelborstels
- Wijnaccessoires
- Servettenhouders
- Barista artikelen
- Glazenrekken
- Maatschenkers en barmaatjes
- Barstations
-
Menu's
-
Afzetpalen & Koorden
-
Krijtborden & Krijtstiften
-
Informatieborden
-
Kassa's, Portefeuilles & Kluizen
-
Vaatwassen & Hygiëne
- Vaatwassen & Hygiëne
-
Vaatwassen
-
Strijken
-
Wasbakken
-
Sanitair
-
Afvalbakken
-
Schoonmaken
-
Asbakken
-
Veiligheid
-
Wassen & Drogen
-
Overige categorieën
Uw winkelwagen
Combisteel
DROP-IN WARMVITRINE KERAMISCH RECHT - ZWART 3/1
This product will be available for sale in 2 weeks, but you can pre-order now to receive 10% discount!
Ontdek de DROP-IN WARMVITRINE KERAMISCH RECHT - ZWART 3/1, de perfecte oplossing voor het presenteren en warmhouden van uw culinaire creaties. Deze warmvitrine voegt niet alleen een stijlvolle uitstraling toe aan uw eetgelegenheid, maar biedt ook optimale functionaliteit die essentieel is in de horeca. Gemaakt van hoogwaardig keramisch materiaal, garandeert deze vitrine duurzaamheid en een professionele afwerking.
- Afmetingen: Perfect ontworpen voor beperkte ruimtes met een slimme 3/1 indeling.
- Materiaal: Duurzaam keramisch voor een lange levensduur en eenvoudig onderhoud.
- Stijlvol ontwerp: De zwarte afwerking zorgt voor een moderne uitstraling die past bij elke inrichting.
- Optimale temperatuurregeling: Houdt uw gerechten op de juiste temperatuur, zodat ze altijd vers en aantrekkelijk blijven.
- Gebruiksvriendelijk: Eenvoudige bediening voor snel en efficiënt gebruik in drukke omgevingen.
Deze DROP-IN warmvitrine onderscheidt zich van andere modellen door zijn unieke combinatie van stijl en functionaliteit. Het is niet alleen een presentatiestuk, maar ook een essentieel apparaat voor elke professionele keuken of buffetsetting. Dankzij het innovatieve ontwerp en de hoogwaardige materialen voldoet deze vitrine aan de behoeften van de moderne chef en horeca-eigenaar.
Verhoog de beleving van uw gasten en verzeker uzelf van kwaliteit met deze stijlvolle warmvitrine. Voeg de DROP-IN WARMVITRINE KERAMISCH RECHT - ZWART 3/1 vandaag nog toe aan uw uitrusting en ervaar het verschil!
DROP-IN WARMVITRINE KERAMISCH RECHT - ZWART 3/1
This product will be available for sale in 2 weeks, but you can pre-order now to receive 10% discount!
Verwachte levering tussen 24 december en 26 december.
Gratis verzending: vanaf €250
24 maanden garantie
Onze experts staan voor je klaar
Lease of advies nodig?
Heb je vragen over lease, een complete keuken of een specifiek apparaat? Neem eenvoudig contact op.
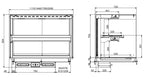
Breedte in mm
1115 mm
Diepte in mm
720 mm
Hoogte in mm
924 mm
Beschrijving
Ontdek de DROP-IN WARMVITRINE KERAMISCH RECHT - ZWART 3/1, de perfecte oplossing voor het presenteren en warmhouden van uw culinaire creaties. Deze warmvitrine voegt niet alleen een stijlvolle uitstraling toe aan uw eetgelegenheid, maar biedt ook optimale functionaliteit die essentieel is in de horeca. Gemaakt van hoogwaardig keramisch materiaal, garandeert deze vitrine duurzaamheid en een professionele afwerking.
- Afmetingen: Perfect ontworpen voor beperkte ruimtes met een slimme 3/1 indeling.
- Materiaal: Duurzaam keramisch voor een lange levensduur en eenvoudig onderhoud.
- Stijlvol ontwerp: De zwarte afwerking zorgt voor een moderne uitstraling die past bij elke inrichting.
- Optimale temperatuurregeling: Houdt uw gerechten op de juiste temperatuur, zodat ze altijd vers en aantrekkelijk blijven.
- Gebruiksvriendelijk: Eenvoudige bediening voor snel en efficiënt gebruik in drukke omgevingen.
Deze DROP-IN warmvitrine onderscheidt zich van andere modellen door zijn unieke combinatie van stijl en functionaliteit. Het is niet alleen een presentatiestuk, maar ook een essentieel apparaat voor elke professionele keuken of buffetsetting. Dankzij het innovatieve ontwerp en de hoogwaardige materialen voldoet deze vitrine aan de behoeften van de moderne chef en horeca-eigenaar.
Verhoog de beleving van uw gasten en verzeker uzelf van kwaliteit met deze stijlvolle warmvitrine. Voeg de DROP-IN WARMVITRINE KERAMISCH RECHT - ZWART 3/1 vandaag nog toe aan uw uitrusting en ervaar het verschil!
U heeft onlangs bekeken
- Een selectie maken veroorzaakt een volledige pagina-vernieuwing.
- Opent in een nieuw venster.